Mrs Ryan
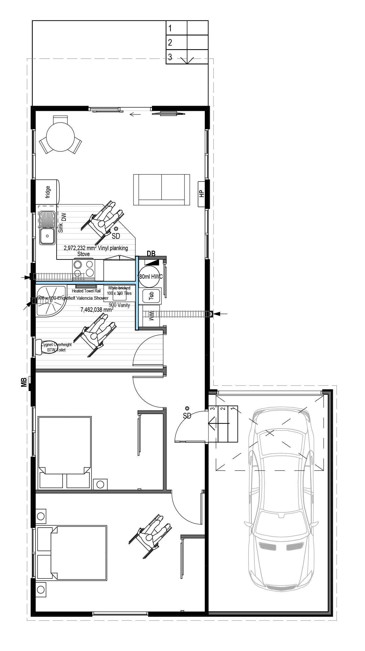
Two Bedroom | Mono Pitch Roof | Garage | 70m2
Ideal entry level home for first home buyers.
Great option for families with young children.
A good option for couples who like to sleep separately
Popular among active grandparents who like to have visitors and grandchildren to stay.
Can easily be set up as a rental investment on your property.
Great spare bedroom for overnight visitors
Can be suitable for additional storage 
We can also provide you with quotes for additional services, add ons.
Talk to us about any other extra options.
Standard Inclusions
- Flooring 
- 90x90mm H5 treated piles 
- Strandfloor flooring. H3 treated to wet areas 
- Poly infloor insulation 
- Wall framing 90x45mm SG8 H1.2 treated 
- Exterior Palliside weatherboard cladding, Slate colour - a cost-effective, environmentally friendly and maintenance-free selection, with a 25 year warranty. This product will not fade or warp over time, with no painting required 
- Soffits 150mm Dynex – a contemporary tongue and groove style soffit with hidden fixings 
- Baseboards – Outdure Niagara 140mm composite fascia boards, Teak colour option 
- Hagley Windows and Doors, Designer series 35mm double-glazed aluminium joinery (single-glazing in garages) 
- Garage option – Futura Woodgrain single garage door with two auto-openers. 
- Decking and steps 140mm Outdure 
- Corrugated coloursteel roofing, Colorsteel fascia and gutter, Colorsteel downpipes. 
- Insulation R3.2 batts to ceilings R2.2 batts to all exterior walls 
- 10mm gib to all internal walls, ceiling, aqualine gib to all wet areas. 
- Window reveals painted with gib-groove finish. 
- Square-stopped ceiling to wall junction. 
- Skirting boards 40x10mm. 
- Interior doors – flush panel with Windsor door hardware and privacy set on bathroom. 
- Plumbing – one outdoor tap, 180L hot water cylinder, Cygnet Overheight BTW Toilet, Raymor Brighton Slide Shower, Elementi Ion basin and shower mixer, Caroma Luna kitchen mixer, Newtech Montana 900mm floor standing vanity with pop-up waste. 
- Englefield Valencia round sliding shower 900x900mm corner contour wall. 
- Newtech 58 watt 5 bar heated towel rail. 
- Raymor Boston toilet roll holder. 
- Raymor Boston hand towel rail. 
Appliances
- Fisher & Paykel Single DishDrawer Dishwasher stainless steel 
- Westinghouse gas cook top, stainless steel 
- Westinghouse electric oven, stainless steel 
- Ariston Canopy Rangehood Low Profile 3 speed 60cm 
 stainless steel
- Laundry – Aquatica Hub Tub Slim with drawers 
- Weiss 2.4KW stainless steel bathroom heater 
- Fujitsu Hi wall heat pump 
Kitchen
- Joinery 18mm melamine velvet finish with matching 2mm PVC edge tape to cupboards and drawers, toe kick 110mm 
- Soft closing cupboards and drawers (lifetime warranty) 
- 38mm laminate bench 
- Stainless steel single sink 
- Cutlery tray 
- Double rubbish bin system in soft closing drawer 
- Tiling to vanities 150mm high and behind kitchen hob. 
Flooring Coverings
- Vinyl planking to wet areas and 100% Solution Dyed Nylon Carpet throughout the rest of your home 
Add Ons
- Septic tank and drain-laying 
- Mains power, phone and internet (availability for internet type 
 varies from area to area)
- Water supply and all pumping/storage needs 
- Driveways and paths 
- Disabled access and mobility options 
- Future re-location option 

 
                     
             
             
             
            